Apartments la la-building red

Two bedroom in Bolton Hill with breathtaking living room. Available for April.

920ft²
  
2 beds,
1 bath
in
Neighborhood
Description

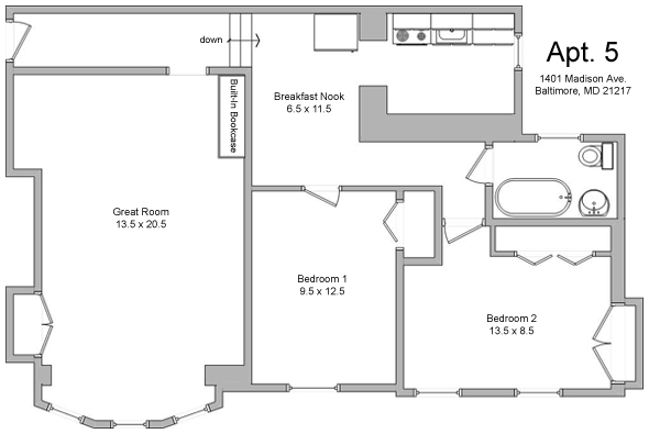
Nestled in the heart of historic Bolton Hill, this stunning two-bedroom, one-bathroom residence perfectly blends nineteenth-century grandeur with scholarly charm. The expansive living room makes a dramatic first impression, defined by soaring high ceilings and an original mahogany fireplace flanked by exquisite matching built-ins that anchor the space in warmth and history. This craftsmanship extends into the rear bedroom, which serves as an ideal sanctuary or private library featuring custom floor-to-ceiling bookshelves protected by elegant beveled glass doors. With its generous proportions and preserved architectural details, this apartment offers a rare opportunity to live within a piece of Baltimore's storied past.

Looking for a 3-person?  The living room has its own door and closet and can easily be used as a third bedroom.

The building is 6 blocks from Penn Station (Amtrak, MARC, Lightrail), 4 blocks from lightrail, 2 blocks from the subway, 1 block from the Eutaw Place bus lines, 5 blocks from University of Baltimore, 4 blocks from MICA, 5 blocks from I-83, 8 blocks from University of MD, 4 blocks from State Center and MD General Hospital, a short walk to Mt. Vernon and 1/2 mile from the inner harbor.

Floor Plan
Quick Stats
$1,350
/mo
base rent*
Neighborhood:
Neighborhood
Available:
Deposit:
$1,350
Layout:
1 Bath
Size:
920ft²
Allowed Pets:
Allowed Pets
Included Utilities:
All Utilities Separate
Internet:
Commercial Class Wifi Included
Included Services:
On-Call Maintenance
Monthly Pest Prevention
Online Service Requests
24-Hour Emergency Service
Free Online Rent Payments
- and more!

*All utilities are separate unless otherwise noted above. Minimum lease term of 12 months required. Rental rate may increase for shorter terms and decrease for longer terms.